• Startseite
  • Werke
  • Studien
  • Über uns
  • Kontakt
  TR Arch.
Picture

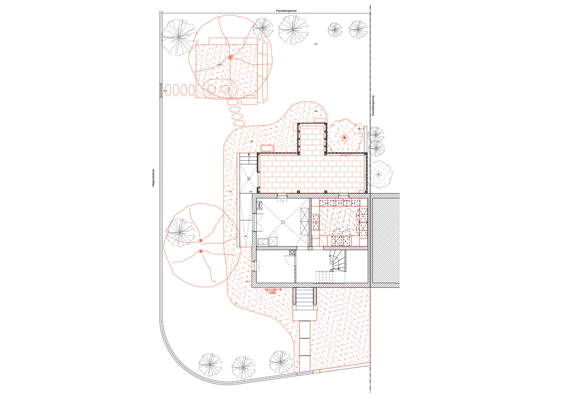
Haus:Garten:Siedlung

Umbau Hausteil und Holzverandaanbau mit Neugestaltung des Gartens
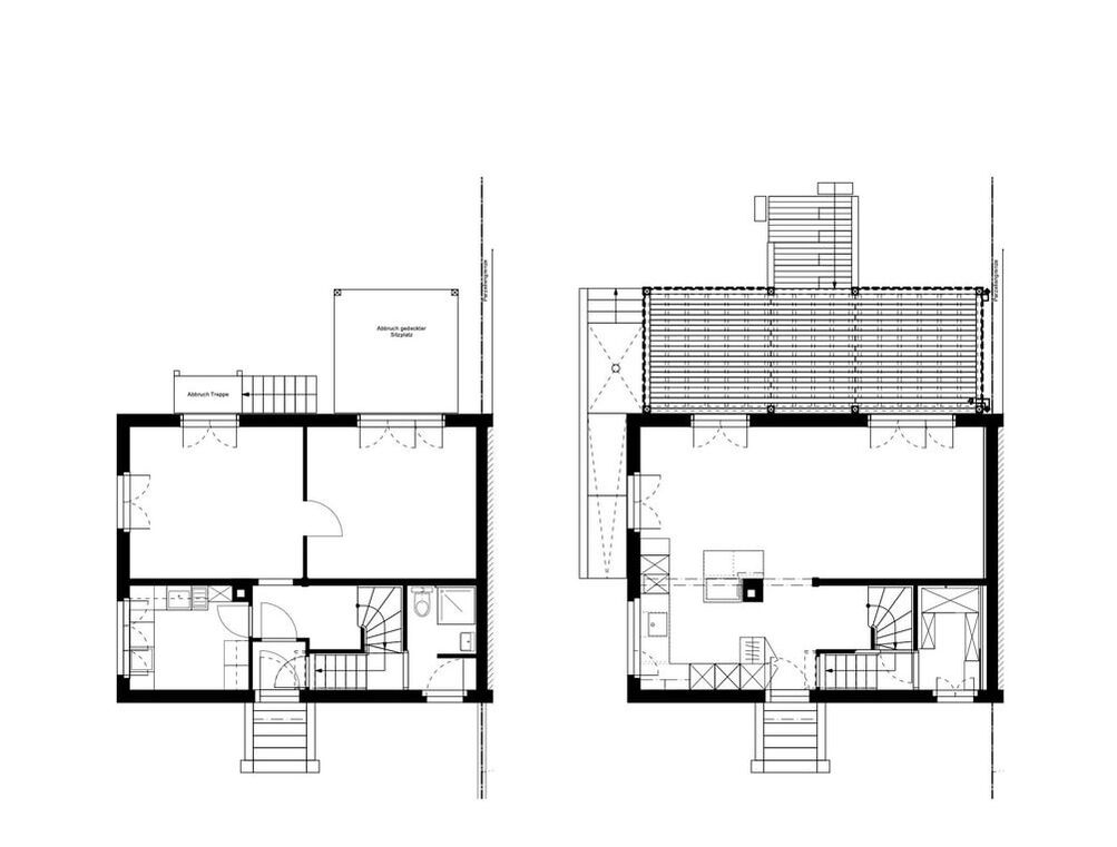
Die solide Bausubstanz und die oekonomische lichtdurchflutete Raumanordnung aus den 1930er Jahren waren Ausgangspunkt für das sorgfältige Weiterbauen.

​Die Treppe verbindet die halbgeschossig versetzten Haupt- und Nebenräume und wurde bis ins Dachgeschoss weitergeführt. Sie ist nun Herzstück des Hauses. 
Im Erdgeschoss greift die Küche in den Essbereich und ist neu Teil einer offenen Raumabwicklung. Im Dach konnte eine zusätzliche Nasszelle in bisher ungenutztem Raum eingefügt werden.
​Intakte, gute Materialien konnten erhalten und ergänzt werden. 
Der Terrazzo im Eingangsbereich ist repariert und aufgefrischt, unterschiedliche Holzarten sind aufgearbeitet, ergänzt und mit neuen kombiniert, ​Eisengeländer führen neu entlang den Treppenläufen und Verandabrüstungen im Innen- und Aussenbereich.

​Die feingliedrige Veranda als offene Geste fördert das nachbarschaftliche Zaungespräch. Der Garten führt mit den stattlichen, neu gepflanzten Bäumen das bestehende Siedlungsgrün von abwechselnd hohen und niedrigen heimischen Bepflanzungen weiter und wächst optisch so mit ihm zusammen. Das Grundstück ist wieder Teil des gesamten Siedlungsraumes.
Bild
Bild


Bild
Bild
vorher / nachher

Bild
vorher / nachher
Verfahren
Direktauftrag

Auftraggeber
Privat

Projektleitung
Lukas Loosli
Besonderes
-
  • Startseite
  • Werke
  • Studien
  • Über uns
  • Kontakt